Municipio e scuola
Grado, 489mila euro per l'efficientamento energetico di due edifici comunali
A essere interessati dai lavori saranno la sede municipale di Piazza Biagio Marin e la scuola primaria Dante Alighieri in Schiusa.
Approvati dalla giunta comunale di Grado due progetti esecutivi riguardanti l'adeguamento normativo e l'efficientamento energetico di due importanti edifici comunali: la sede municipale di Piazza Biagio Marin e la scuola primaria Dante Alighieri in Schiusa, per un importo complessivo paria a circa 489mila euro.
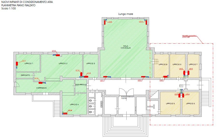
Per la sede municipale di Piazza Biagio Marin i lavori consistono nella sostituzione del generatore di calore esistente con un nuovo generatore di calore a condensazione completo di bruciatore modulante e nella realizzazione di un nuovo condotto di evacuazione fumi, la realizzazione di un nuovo sistema di monitoraggio e di controllo della centrale termica maggiormente efficiente ed in grado di controllare i vari componenti dell'impianto, l’adeguamento dei quadri elettrici della centrale termica ed inoltre l’installazione di un nuovo impianto di condizionamento aria del tipo multisplit su tutto il piano terra della sede comunale, suddiviso in più zone, in modo da soddisfare l'ala est sede dell'Anagrafe, l'ala ovest (Turismo e Suap) e la sala del Consiglio.
Questi impianti, con funzione sia di riscaldamento che di raffrescamento, saranno indipendenti dal sistema di riscaldamento esistente ed in particolare potranno essere attivati anche in orari diversi da quelli ordinari di lavoro. Tale condizione risulterà particolarmente utile per la Sala Consiglio, che potrà essere utilizzata anche ad esempio per riunioni ed iniziative in orario serale senza richiedere l’attivazione “fuori orario” della centrale termica.
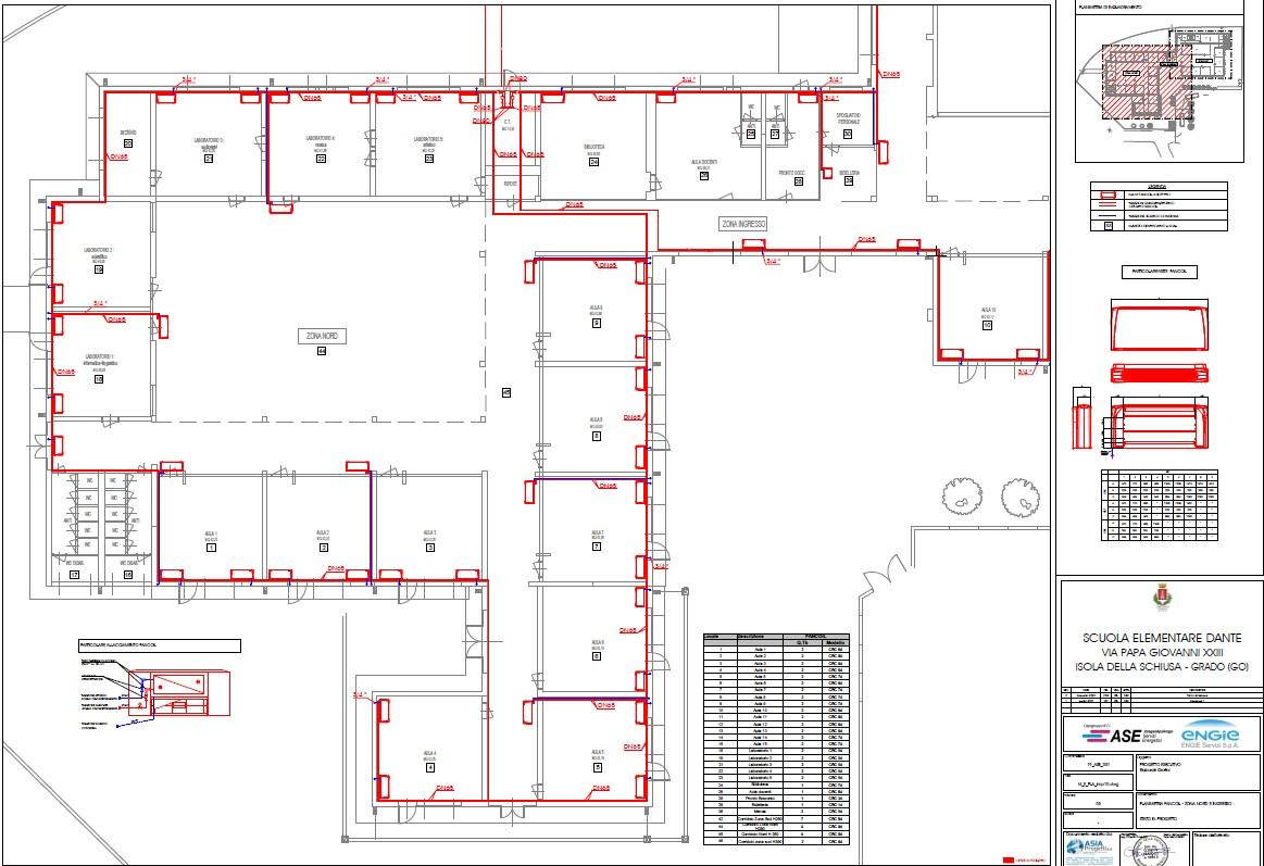
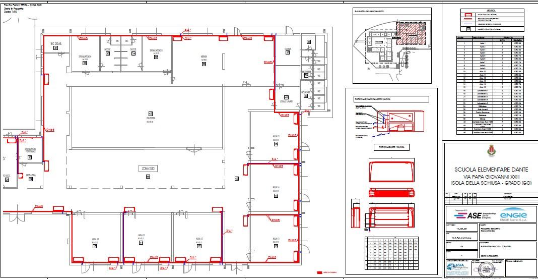
Per la scuola elementare Dante Alighieri i lavori consistono nella sostituzione del generatore di calore esistente con un nuovo generatore di calore a condensazione completo di bruciatore modulante e nella realizzazione di un nuovo condotto di evacuazione fumi, la realizzazione di un nuovo sistema di monitoraggio e di controllo della centrale termica maggiormente efficiente ed in grado di controllare i vari componenti dell'impianto, l’adeguamento dei quadri elettrici della centrale termica e l’installazione di un sistema dedicato per la produzione Acqua Calda Sanitaria, con alimentazione a gas metano. Inoltre, è prevista l’installazione di un nuovo impianto di riscaldamento e condizionamento aria che prevede la suddivisione dell’edificio in più zone.
La quasi totalità della volumetria dell’edificio verrà trattata con il nuovo impianto a ventilconvettori per il riscaldamento invernale e il condizionamento estivo. Alcuni locali di servizio verranno invece serviti da un impianto di solo riscaldamento invernale a radiatori. L’impianto di condizionamento sarà suddiviso in due zone, in modo da poter utilizzare l’edificio in modo parziale, in funzione dell’effettiva esigenza. Il progetto prevede che ogni aula sia dotata di due ventilconvettori, per distribuire meglio l’aria in ambiente. I ventilconvettori avranno ventilatori tangenziali, particolarmente silenziosi e quindi idonei per l’impiego scolastico.
“Attraverso questi interventi si intende garantire il benessere dei bimbi, degli insegnanti e dei dipendenti nonché di tutte le persone che frequentano i servizi della sede municipale oltretutto garantendo un importante risparmio energetico e benessere ambientale”, sottolinea l’amministrazione.
Rimani sempre aggiornato sulle ultime notizie dal Territorio, iscriviti al nostro canale Telegram, seguici su Facebook o su Instagram! Per segnalazioni (anche Whatsapp e Telegram) +39 328 663 0311.





Occhiello
Notizia 1 sezione
Occhiello
Notizia 2 sezione

















